Hvordan indretter man en lækker, hyggelig og stemningsfyldt jazzbar i en 600kvm nybygget betonbygning med store vinduer?
I 2026 åbner en ny jazzbar i Aarhus, og vores kunde ønskede en indretning med vintageelementer, der fanger den helt rigtige jazzstemning med et ansvarligt og gennemtænkt udtryk.
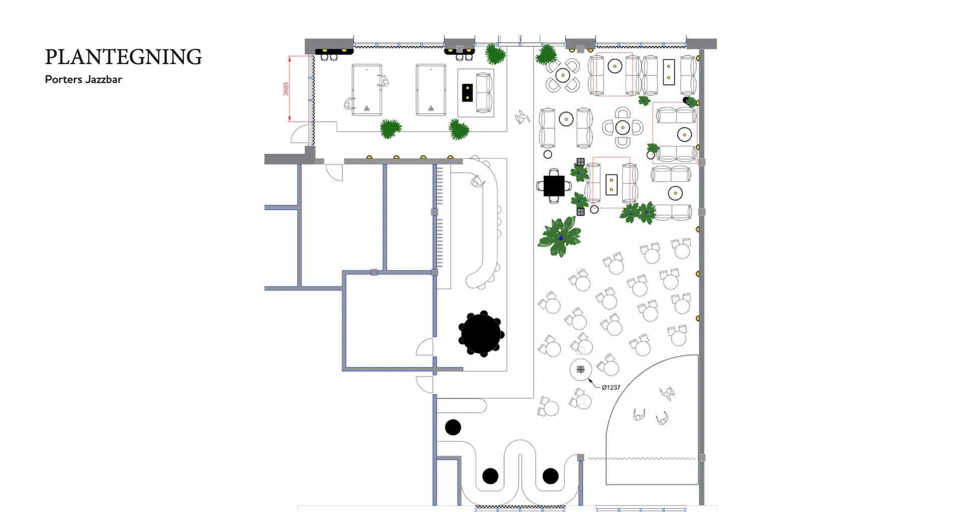
Vi arbejdede tæt sammen med kunden gennem hele processen. Vi udviklede blandt andet moodboards, farve- og materialekoncepter samt 2D plantegninger, 3D-visualiseringer og collagebaserede vægopsætninger. Formålet var at skabe en klar visuel retning og sikre, at både stemning og praktisk realisering hang sammen.



